【仲介】東京PARKTOWER晴海 6階
価格248,000,000円(税込)
管理費/月26,930円
修缮積立金/月14,080円
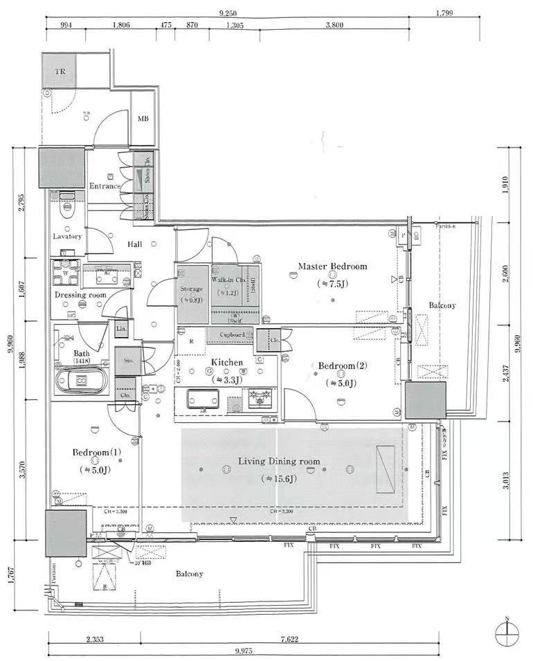
面積専有面積82.85㎡ バルコニー20.36㎡
間取り3LDK
築年2019年02月
所在階6階
所在地東京都中央区晴海2-2-42
最寄り駅有楽町線「月島駅」徒歩12分
大江戸線「勝どき駅」徒歩15分
中央エリア(銀座・東京)へ直行

★おすすめPoint★
・湾岸人気タワー
・南東角部屋、日当たり良好
・レインボーブリッジ眺望
・天井高2,600mm、開放的なLDK
・床暖房、ビルトインエアコン
・共用施設充実(クラブラウンジ/ゲストルーム/スタディルーム/ジム など)
・駐車場空きあり

大開口の窓から広がる眺望と、
ゆったりとした82㎡超の3LDK。
お部屋からレインボーブリッジと運河を望む贅沢な時間を。

ぜひ一度、現地をご覧になってみませんか?
内覧のご希望はお気軽にお問い合わせください。